logo
  • PROJECTS
  • ABOUT US
  • CONTACTS
GRM | Project for a villa | 2020 | Grimisuat
Project for a private villa in Grimisuat (VS). Project in collaboration with SHE architecture.

GRM | Villa project

GRM | Villa project

GRM | Project for a villa | 2020 | Grimisuat
Project for a private villa in Grimisuat (VS). Project in collaboration with SHE architecture.

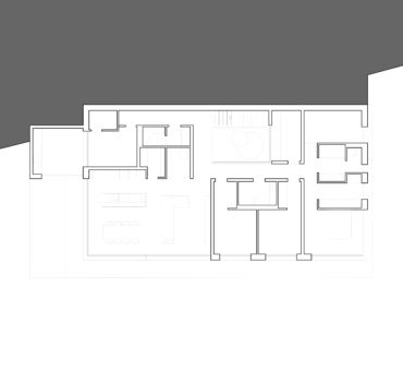
GRM | Villa project | 2020 | Grimisuat

Project for a private villa in Grimisuat (VS).

Project in collaboration with SHE architecture.

  • FR
  • EN